Thiết kế nhà ngang 8m dài 14m là một trong những chủ đề được nhiều người quan tâm. Với diện tích này, kiến trúc sư có thể sáng tạo nên nhiều phong cách thiết kế độc đáo, từ hiện đại đến cổ điển, kết hợp hài hòa giữa không gian nội thất và ngoại thất. Tham khảo bài viết của EnBasic cập nhật đến bạn những mẫu nhà đẹp và được nhiều người yêu thích.
Lợi thế khi thiết kế nhà ngang 8m dài 14m
Nhà ngang 8m x 14m là một trong những kích thước phổ biến được nhiều gia đình lựa chọn. Với diện tích này, bạn có thể dễ dàng xây dựng một ngôi nhà đẹp, hiện đại và phù hợp với nhiều phong cách khác nhau. Từ nhà cấp 4 đơn giản đến biệt thự sang trọng, tất cả đều có thể được thiết kế trên diện tích này. Ngoài ra, khi thiết kế nhà diện tích 8m x 14m còn có lợi ích như sau.
- Diện tích này bạn có thể bố trí công năng một cách linh hoạt, từ phòng khách, bếp ăn, phòng ngủ đến các không gian sinh hoạt chung khác.
- Thiết kế nhà ngang 8m dài 14m là khả năng áp dụng đa dạng các phong cách thiết kế, từ hiện đại, tối giản đến cổ điển, tân cổ điển,… mỗi phong cách đều có thể được thể hiện toàn bộ trên diện tích này.
- Bề dài 14m của ngôi nhà, kiến trúc sư có thể bố trí nhiều cửa sổ để đón ánh sáng tự nhiên vào nhà, tạo không gian sống trong lành và thoáng mát.
- Nhà ngang 8m x 14m phù hợp với nhiều đối tượng khách hàng, từ gia đình trẻ năng động đến gia đình nhiều thế hệ. Bạn có thể dễ dàng bố trí các phòng riêng biệt, đảm bảo sự riêng tư cho từng thành viên trong gia đình.
- Một bản vẽ chi tiết và hợp lý, bạn có thể lựa chọn các vật liệu xây dựng phù hợp, giảm thiểu diện tích xây dựng không cần thiết.

Gợi ý cách bố trí công năng hiệu quả
Dưới đây là một số gợi ý bố trí công năng hiệu quả cho nhà ngang 8m x 14m, bạn có thể tham khảo và điều chỉnh cho phù hợp với nhu cầu và sở thích của gia đình mình.
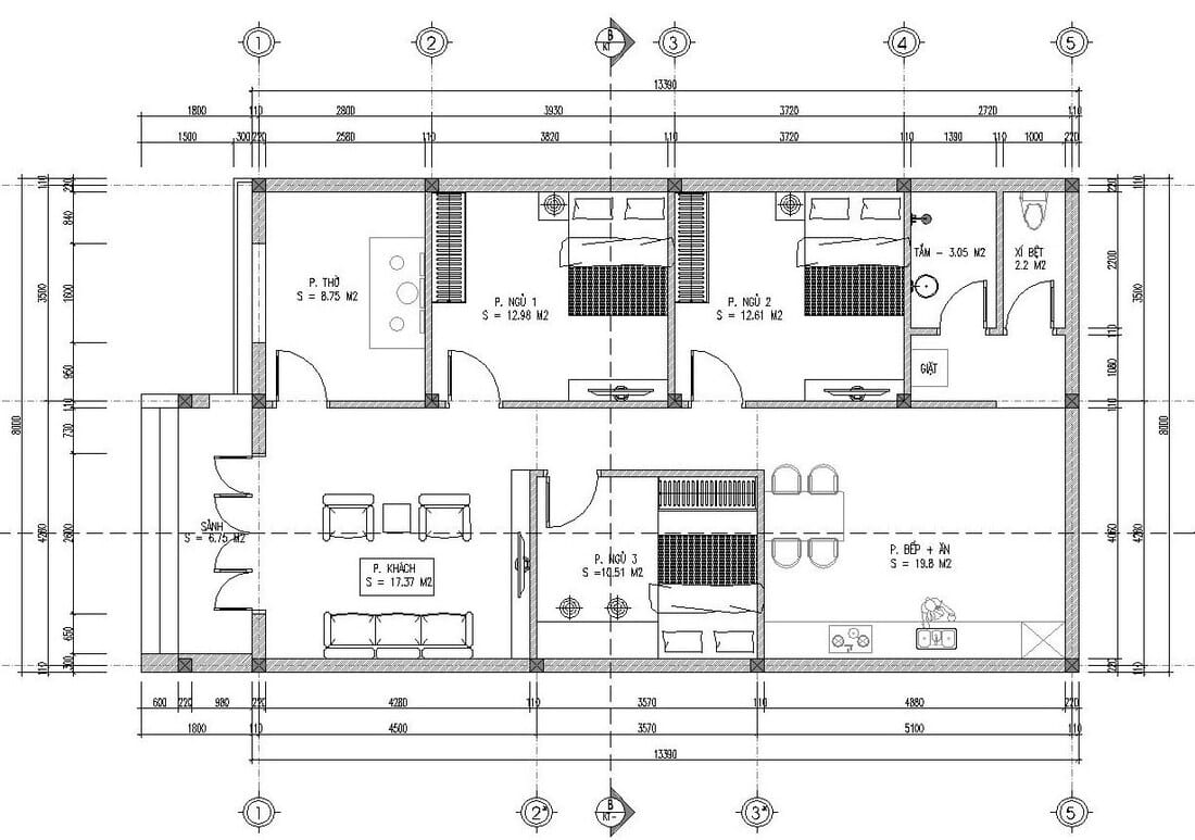
Công năng nhà 1 tầng diện tích 8x14m
Với ngôi nhà 1 tầng có diện tích 8x14m, việc bố trí công năng cần tối ưu không gian sử dụng, phù hợp cho gia đình nhỏ hoặc người cao tuổi:
- Phòng khách: Bố trí ở ngay cửa chính, chiếm khoảng 1/4 diện tích nhà, tạo không gian rộng rãi để sinh hoạt và đón tiếp khách. Phòng khách nên thiết kế cửa kính lớn để đón ánh sáng và thông gió tự nhiên.
- Phòng bếp và phòng ăn: Khu vực bếp được bố trí liền kề phòng khách để tạo sự liên thông, thuận tiện cho sinh hoạt hàng ngày. Bạn nên thiết kế bếp hình chữ I để tối ưu diện tích. Phòng ăn rộng rãi đủ chỗ cho 4-6 người, sử dụng nội thất đơn giản nhưng tiện dụng.
- Phòng ngủ: Ngôi nhà 1 tầng có thể bố trí từ 2-3 phòng ngủ. Phòng ngủ master được đặt ở phía sau hoặc bên cạnh nhà, tạo không gian yên tĩnh, riêng tư. Các phòng ngủ phụ dành cho con cái hoặc khách có thể bố trí ở giữa, gần nhà vệ sinh chung.
- Nhà vệ sinh: Được bố trí gần khu vực phòng ngủ, giúp tiết kiệm diện tích và tiện lợi cho việc sử dụng.
- Sân vườn và không gian ngoài trời: Phía trước và sau nhà có thể dành một khoảng sân nhỏ để làm sân vườn hoặc khu vực thư giãn, tạo không gian xanh cho ngôi nhà.

Công năng thiết kế nhà ngang 8m dài 14m 2 tầng
Bản vẽ nhà 2 tầng với diện tích 8x14m cho phép bố trí nhiều không gian chức năng hơn, đáp ứng nhu cầu sinh hoạt của gia đình 3-5 thành viên:
Tầng 1. Không gian sinh hoạt chung
- Phòng khách: Đặt ở phía trước, rộng rãi và liên thông với các khu vực khác. Sử dụng nội thất hiện đại, tinh tế để tạo sự thoải mái cho các buổi tụ họp.
- Phòng bếp và phòng ăn: Bếp được bố trí ở cuối nhà, phòng ăn đặt cạnh bếp để tiện lợi cho việc di chuyển. Có thể thêm quầy bar nhỏ giữa phòng khách và phòng bếp để tăng tính thẩm mỹ và chức năng.
- Phòng ngủ: Có thể bố trí 1 phòng ngủ nhỏ ở tầng 1, phù hợp cho người lớn tuổi hoặc làm phòng khách/phòng làm việc linh hoạt.
- Nhà vệ sinh: Nhà vệ sinh chung cho tầng 1 đặt gần phòng ngủ hoặc dưới gầm cầu thang để tiết kiệm diện tích.
Tầng 2. Khu vực nghỉ ngơi
- Phòng ngủ master: Phòng ngủ chính nên được bố trí phía trước, có ban công rộng để đón ánh sáng và không khí trong lành. Phòng nên có nhà vệ sinh riêng, tủ quần áo âm tường và góc làm việc nhỏ.
- Phòng ngủ phụ: 1 hoặc 2 phòng ngủ phụ dành cho con cái hoặc khách, mỗi phòng đều có cửa sổ lớn để đảm bảo sự thông thoáng.
- Nhà vệ sinh chung: Nhà vệ sinh chung đặt ở giữa các phòng ngủ, thuận tiện cho việc di chuyển.

Công năng thiết kế nhà 3 tầng ngang 8m dài 14m
Nhà 3 tầng với diện tích 8x14m là lựa chọn lý tưởng cho gia đình đông thành viên hoặc những ai cần nhiều không gian riêng biệt:
Tầng 1. Không gian sinh hoạt
- Phòng khách: Đặt ngay lối vào chính với diện tích lớn, tạo không gian rộng mở và sang trọng. Nội thất cao cấp và trang trí tinh tế giúp ngôi nhà thêm ấn tượng.
- Phòng bếp và phòng ăn: Phòng bếp và phòng ăn được bố trí ở phía sau nhà, sử dụng thiết kế hiện đại, đầy đủ tiện nghi. Phòng ăn đủ sức chứa từ 6-8 người, phù hợp cho gia đình đông thành viên hoặc các buổi tiệc nhỏ.
- Phòng ngủ hoặc phòng làm việc: Có thể bố trí thêm phòng ngủ nhỏ tại tầng 1, giúp gia đình có thêm không gian riêng biệt khi cần thiết.
- Nhà vệ sinh: Nhà vệ sinh chung đặt gần cầu thang hoặc sau nhà để tiết kiệm diện tích.
Tầng 2. Không gian nghỉ ngơi
- Phòng ngủ master: Diện tích lớn, nằm ở phía trước, với ban công và phòng tắm riêng.
- Phòng ngủ phụ: 2 phòng ngủ phụ dành cho con cái hoặc người thân, đều có cửa sổ thoáng mát và không gian riêng tư.
- Nhà vệ sinh chung: Đặt giữa các phòng ngủ để thuận tiện cho mọi người sử dụng.
Tầng 3. Không gian giải trí và thư giãn
- Phòng thờ: Đặt ở vị trí cao nhất của ngôi nhà, đảm bảo sự tôn nghiêm và yên tĩnh.
- Sân thượng: Tận dụng không gian sân thượng để trồng cây xanh, tạo khu vực thư giãn ngoài trời cho cả gia đình. Gia chủ cũng có thể lắp đặt bộ bàn ghế để thưởng trà hoặc đọc sách.
- Phòng giặt: Tầng 3 có thể bố trí thêm phòng giặt phơi để đáp ứng nhu cầu sinh hoạt.

Ý tưởng thiết kế nhà ngang 8m dài 14m ấn tượng
Khi thiết kế một ngôi nhà ngang 8m dài 14m, việc lựa chọn phong cách kiến trúc và bố trí công năng hợp lý sẽ quyết định rất lớn đến tính thẩm mỹ, tiện nghi và sự hài lòng trong quá trình sử dụng. Dưới đây là những ý tưởng thiết kế ấn tượng, từ phong cách hiện đại đẳng cấp, tân cổ điển sang trọng, đến phong cách châu Âu tinh tế và truyền thống Việt gần gũi, giúp bạn lựa chọn được phương án tối ưu cho ngôi nhà mơ ước.
Thiết kế nhà 8x14m 1 tầng có sân gạch rộng rãi
Mẫu nhà 1 tầng với diện tích 8x14m này là lựa chọn lý tưởng cho những ai yêu thích sự tiện nghi và thoải mái trong không gian sống. Thiết kế nổi bật với sân gạch rộng rãi phía trước, tạo nên không gian thư giãn ngoài trời, lý tưởng cho các buổi tiệc sum họp gia đình hay làm nơi đậu xe của gia đình mình. Ngoài ra, tông màu trắng chủ đạo của ngôi nhà kết hợp mái màu xám mang đến cảm giác gần gũi và mộc mạc hơn.

Mẫu nhà ngang 8 dài 14m 2 tầng phong cách hiện đại, đẳng cấp
Mẫu nhà 1 trệt 1 lầu dưới đây mang phong cách hiện đại được nhiều gia đình yêu thích bởi sự sang trọng. Thiết kế ấn tượng với các đường nét kiến trúc vuông vức tạo nên vẻ đẹp hiện đại, tối giản nhưng không kém phần ấn tượng. Mặt tiền được phối hợp hài hòa giữa các vật liệu như kính, bê tông cùng với cây xanh vừa tạo sự thông thoáng vừa làm tăng tính thẩm mỹ cho ngôi nhà.

Bản vẽ thiết kế nhà 8x14m 3 tầng phong cách tân cổ điển
Mẫu thiết kế nhà ngang 8m dài 11m 3 tầng này được sử dụng phong cách tân cổ điển mang đến vẻ đẹp sang trọng và tinh tế, hòa quyện giữa nét cổ điển và hiện đại. Với những đường nét phào chỉ, cột trụ “vững chắc” và họa tiết hoa văn tỉ mỉ, ngôi nhà không chỉ gây ấn tượng mà còn thể hiện gu thẩm mỹ cao của gia chủ. Mặt tiền được thiết kế hài hòa với màu sắc trắng kết hợp cùng hệ thống cửa sổ lớn giúp đón ánh sáng, tạo nên không gian sống thoáng đãng.

Mẫu thiết kế nhà 8x14m 3 tầng phong cách tối giản
Mẫu thiết kế 3 tầng diện tích sàn 112m phong cách tối giản này nổi bật với kiến trúc gọn gàng, mang đậm tính hiện đại. Tổng thể ngôi nhà sử dụng các đường nét vuông vức, kết hợp với tông màu trắng sáng và vật liệu gỗ ấm áp, tạo nên sự hài hòa với người nhìn. Ngoài ra, khu sân vườn với lối đi lát gạch cùng tường hai bên dẫn vào nhà, góp phần làm tăng tính thẩm mỹ cho ngôi nhà.

Mẫu thiết kế nhà ngang 8m dài 14m, 2 mặt tiền, 3 tầng ấn tượng
Mẫu nhà lô góc 2 mặt tiền dưới đây ấn tượng phần kiến trúc cong độc đáo tạo điểm nhấn về kiến trúc. Ngoài ra, kiến trúc của ngôi nhà kết hợp hài hòa giữa các mảng tường trắng và vật liệu gỗ, tạo nên một tổng thể sang trọng. Ban công ở các tầng được trang trí với cây xanh, mang lại không gian sống gần gũi với thiên nhiên và thoáng đãng.

Mẫu nhà mái Thái mới lạ diện tích mặt tiền ngang 8m
Mẫu nhà mái Thái với tông màu trắng chủ đạo và mặt tiền ngang 8m mang đến vẻ đẹp tinh tế, thanh lịch và khác biệt với thiết kế mái truyền thống. Thiết kế mái Thái với độ dốc vừa phải giúp ngôi nhà không chỉ đẹp mắt mà còn tối ưu về khả năng thoát nước và chống nóng. Màu trắng của kiến trúc làm nổi bật các đường nét kiến trúc sắc sảo, đồng thời tạo cảm giác rộng rãi, thoáng đãng cho không gian. Mặt tiền 8m được tận dụng tối đa để mang đến sự cân đối, hài hòa, kết hợp với cửa sổ và cửa chính bằng kính giúp không gian trong nhà sáng hơn.

Bản vẽ phối cảnh nhà 5 tầng mặt tiền 8m
Mẫu nhà 5 tầng dưới đây với mặt tiền rộng 8m nổi bật với phong cách hiện đại và sang trọng. Kiến trúc ngôi nhà gây ấn tượng bởi sự kết hợp hài hòa giữa các mảng tường trắng, kính lớn tạo nên không gian sống thoáng đãng. Bên cạnh đó, ban công ở mỗi tầng được bố trí nhiều chậu cây xanh, làm cho ngôi nhà thêm phần gần gũi với thiên nhiên và ấm cúng.

Lưu ý để thiết kế nhà ngang 8m dài 14m đẹp
Khi thiết kế một ngôi nhà, đặc biệt là nhà ngang 8m x 14m, có rất nhiều yếu tố cần cân nhắc để đảm bảo công trình vừa đẹp mắt, vừa tiện nghi và phù hợp với nhu cầu sử dụng của gia đình. Dưới đây là một số lưu ý quan trọng mà bạn nên ghi nhớ:
- Với diện tích 8x14m, việc bố trí phòng khách, phòng ngủ, bếp và các khu vực chức năng khác cần được sắp xếp một cách hợp lý để tối ưu hóa diện tích mà vẫn đảm bảo sự thông thoáng.
- Thiết kế không gian mở giữa phòng khách, bếp và phòng ăn sẽ tạo cảm giác rộng rãi hơn, đồng thời giúp gia đình dễ dàng tương tác với nhau hơn.
- Cửa sổ lớn, giếng trời hoặc hệ thống cửa kính sẽ giúp ánh sáng tự nhiên tràn vào không gian, tiết kiệm năng lượng và tạo không gian thoáng đãng.
- Đảm bảo hệ thống thông gió tự nhiên qua các cửa sổ, cửa chính hoặc giếng trời để lưu thông không khí, tránh tạo cảm giác bí bách.
- Tùy thuộc vào sở thích của gia đình, bạn có thể chọn phong cách hiện đại, tân cổ điển, châu Âu,… mỗi phong cách có cách sắp xếp và bố trí nội thất khác nhau, do đó cần xác định rõ trước khi bắt tay vào thiết kế.
- Ngoại thất và nội thất cần có sự nhất quán về phong cách, màu sắc, vật liệu sử dụng để tạo sự hài hòa cho ngôi nhà.
- Dành một khoảng không gian trước hoặc sau nhà để trồng cây xanh, giúp các thành viên gần gũi với thiên nhiên và tạo nơi thư giãn cho gia đình.
- Nếu nhà có tầng 2 hoặc tầng 3, thiết kế ban công, sân thượng sẽ là nơi lý tưởng để trồng cây, đặt bàn ghế thư giãn.
- Bố trí các lối đi rộng rãi, không gian thoáng và đảm bảo các tiêu chuẩn về hệ thống điện, nước, chống thấm để ngôi nhà luôn an toàn và bền vững theo thời gian.
- Chi phí xây dựng cần được tính toán kỹ lưỡng dựa trên quy mô nhà và các yếu tố khác như vật liệu, phong cách thiết kế và khu vực xây dựng.

Như vậy, qua bài viết trên đã tổng hợp những thông tin về thiết kế nhà ngang 8m dài 14m, giúp bạn hoàn toàn có thể sở hữu một ngôi nhà hiện đại, tiện nghi và đầy đủ công năng. Hy vọng những gợi ý trên mà EnBasic chia sẻ có thể thêm ý tưởng đến thiết kế nên một không gian sống phù hợp cho gia đình mình. Nếu bạn cần tư vấn thêm, đừng ngần ngại liên hệ với chúng tôi qua hotline 0876 68 68 69.
(Một số hình ảnh tham khảo nguồn internet)